'JoyGolf Smart +' đã được lắp đặt tại các cơ sở phúc lợi của các công ty tại thành phố Osaka, tỉnh Osaka.

27/02/2019

Tin công ty

2/27/2019 3:54:48 PM
'JoyGolf Smart +' đã được lắp đặt tại các cơ sở phúc lợi của các công ty tại thành phố Osaka, tỉnh Osaka.

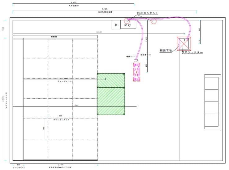
Chúng tôi đã đề xuất thiết lập "JoyGolf Smart +" để có khách hàng trải nghiệm mô hình mô phỏng Golf thoải mái vì cảm biến được treo trên trần nhà, không gian thoáng và không ảnh hưởng đến thẩm mỹ căn phòng.

Tường và trần nhà được trang bị đệm, sàn nhà được trải có nhân tạo chuyên dụng.

logo"
CÔNG TY TNHH MTV GOLFLAND
Bản quyền nội dung của CÔNG TY TNHH MTV GOLFLAND - golfland.vn
URL: https://golfland.vn/tin-tuc/8/-joygolf-smart-da-duoc-lap-dat-tai-cac-co-so-phuc-loi-cua-cac-cong-ty-tai-thanh-pho-osaka-tinh-osaka--32.html
Các tin khác
Chúng tôi thường xuyên gửi email cho bạn những tin tức và thông tin khuyến mãi của Golfland. Vui lòng điền địa chỉ email của bạn vào bên dưới.

Đăng ký nhận bản tin

Liên hệ

CÔNG TY TNHH MỘT THÀNH VIÊN GOLFLAND

Địa chỉ: Số 471/12, Đường  Nơ Trang Long, Phường 13, Quận Bình Thạnh, Thành Phố Hồ Chí Minh, Việt Nam.

MST: 0315514023

ĐT: 0938727234 ( Mr An )


Email:

nguyenbinhan707@gmail.com

 

 

Kết nối với chúng tôi

GEO: 10.8216362, 106.7061189
CÔNG TY TNHH MTV GOLFLAND
Work:
info@golfland.vn
Ho Chi Minh City, HCMC 700000
Vietnam
Cell: (028) 3910-6855
CÔNG TY TNHH MTV GOLFLAND CÔNG TY TNHH MTV GOLFLAND cà phê nguyên chất
471/12, Nơ Trang Long, P. 13, Q.Bình Thạnh, TP.HCM Ho Chi Minh City, HCMC Vietnam
700000
info@golfland.vn
Điện thoại: 0938727234 T2-T7 8am - 5:30pm CÔNG TY TNHH MTV GOLFLAND VND200000 - VND500000

Golf màn hình GOLFLAND.VN thiết bị mô phỏng chơi golf

CÔNG TY TNHH MTV GOLFLAND - Chuyên phân phôí thiết bị mô phỏng Golf nhập khẩu từ Nhật Bản (Golf màn hình)